Продам готовый арендный бизнес, 51,8 м²

ул им. Героя Яцкова И.В., д. 15, корп. 1

14 500 000 руб.

?

$ 1 086

€ 979

279 923 руб./м²


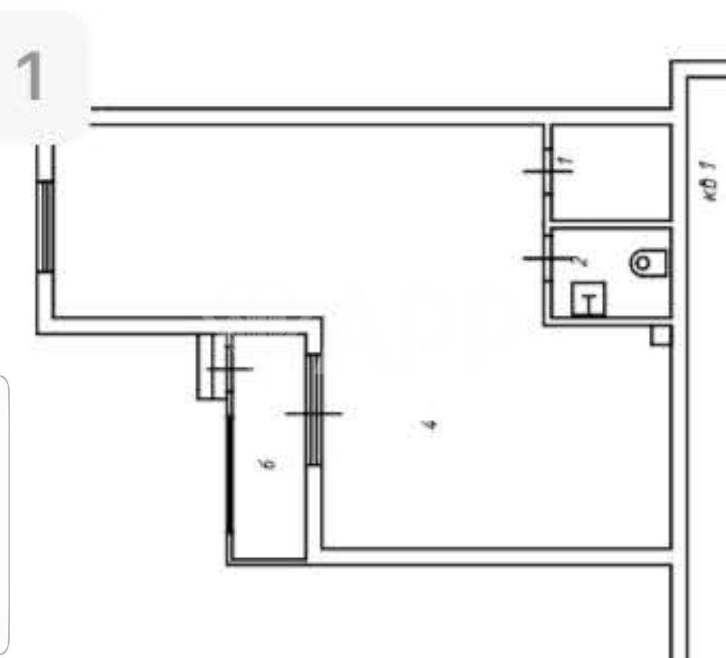
51.8 м²

1/22 этажей

Код объекта

126121

Предложение доступно для субагентов, авторизуйтесь

Продам Готовый арендный бизнес, 51,8 м²

Код объекта: 126121.
Тип объекта: Готовый арендный бизнес.
Площадь: 51.8 м².
Этаж / Этажность: 1 / 22.
Месячный арендный поток (МАП): 68000 руб.
Окупаемость: 17.8 лет
Доходность: 5.6 %

Описание и характеристики

Стоимость объекта: 14 500 000 руб.
Месячный арендный поток (МАП): 68 000 руб.
Окупаемость: 17.8 лет
Доходность: 5.6 %
Индексация: 10 %
Окупаемость (с индексацией): 10.7 лет
Доходность (с индексацией): 9.3 %
Потенциальный МАП: 80 000 руб.
Арендатор: Вайлдберриз
Продаю помещение общей площадью 51,8 кв.м
От Собственника. Без комиссии
- Первая линия
- Первый этаж
- Удобный подъезд
- ЖК Губернский
- Район высокой плотности застройки
- Большая парковка на улице
- Помещение правильной формы
- Свой отдельный выход
- Высокий трафик
-Долгосрочный арендатор
- Коммуникации центральные
- Доходность 5,6 %
- Окупаемость  17,7 лет
- От Собственника. Без комиссии

По всем вопросам можете обращаться к вашему персональному менеджеру:
Айгуль Воробьева - консультанту по коммерческой недвижимости.
Большая база коммерческой недвижимости.
От Собственника. Без комиссии
"Агентство регионального развития"
Коммерческая недвижимость Краснодара.
От Собственника. Без комиссии
Помощь с оформлением ипотеки

Подписывайтесь на наш профиль, чтобы узнавать о новых локациях первыми!

Перейти в карточку объекта в CRM: 126121.

АРР Краснодар

+7 989 169-49-07

или оставьте ваш номер, и я перезвоню в течение 30 минут

Отправляя заявку вы соглашаетесь на обработку персональных данных

14 500 000 руб.

?

$ 178 110

€ 153 110

279 923 руб./м²


51.8 м²

1/22 этажей

Код объекта

126121

Предложение доступно для субагентов, авторизуйтесь

АРР Краснодар

+7 989 169-49-07

или оставьте ваш номер, и я перезвоню в течение 30 минут

Отправляя заявку вы соглашаетесь на обработку персональных данных

Похожие объявления

Посмотреть все похожие объявления
1/22
Код объекта: 274806.
Тип объекта: Готовый арендный бизнес.
Площадь: 175 м².
Этаж / Этажность: 1 / 10.
1/7
Код объекта: 354778.
Тип объекта: Готовый арендный бизнес.
Площадь: 48 м².
Этаж / Этажность: 1 / 22.
1/12
Код объекта: 354777.
Тип объекта: Готовый арендный бизнес.
Площадь: 47.4 м².
Этаж / Этажность: 1 / 22.
1/10
Код объекта: 338522.
Тип объекта: Готовый арендный бизнес.
Площадь: 65.7 м².
Этаж / Этажность: 1 / 24.
1/10
Код объекта: 334366.
Тип объекта: Готовый арендный бизнес.
Площадь: 147 м².
Этаж / Этажность: 1 / 1.
1/18
Код объекта: 243377.
Тип объекта: Готовый арендный бизнес.
Площадь: 48 м².
Этаж / Этажность: 1 / 12.
1/22
Код объекта: 273349.
Тип объекта: Готовый арендный бизнес.
Площадь: 65 м².
Этаж / Этажность: 1 / 20.
1/27
Код объекта: 300970.
Тип объекта: Готовый арендный бизнес.
Площадь: 37.3 м².
Этаж / Этажность: -1 / 20.
1/7
Код объекта: 354778.
Тип объекта: Готовый арендный бизнес.
Площадь: 48 м².
Этаж / Этажность: 1 / 22.
1/12
Код объекта: 354777.
Тип объекта: Готовый арендный бизнес.
Площадь: 47.4 м².
Этаж / Этажность: 1 / 22.
1/18
Код объекта: 253177.
Тип объекта: Торговое помещение.
Площадь: 147.5 м².
Этаж / Этажность: 1 / 22.
1/20
Код объекта: 253216.
Тип объекта: Торговое помещение.
Площадь: 62.5 м².
Этаж / Этажность: 1 / 22.
1/18
Код объекта: 242153.
Тип объекта: Торговое помещение.
Площадь: 93.8 м².
Этаж / Этажность: 1 / 19.
1/14
Код объекта: 242152.
Тип объекта: Торговое помещение.
Площадь: 71.5 м².
Этаж / Этажность: 1 / 19.
1/10
Код объекта: 254225.
Тип объекта: Торговое помещение.
Площадь: 24.6 м².
Этаж / Этажность: 1 / 22.

Не хочу искать, перезвоните мне!

Оставьте номер телефона, наш специалист свяжется с вами и поможет с подбором недвижимости!