Сдам отдельно стоящее здание, 880 м²

Ленинский пер, д. 27

1 000 000 руб.

?

$ 1 086

€ 979

1 136 руб./м²


880 м²

1/2 этажей

Код объекта

131039

Предложение доступно для субагентов, авторизуйтесь

Сдам Отдельно стоящее здание, 880 м²

Код объекта: 131039.
Тип объекта: Отдельно стоящее здание.
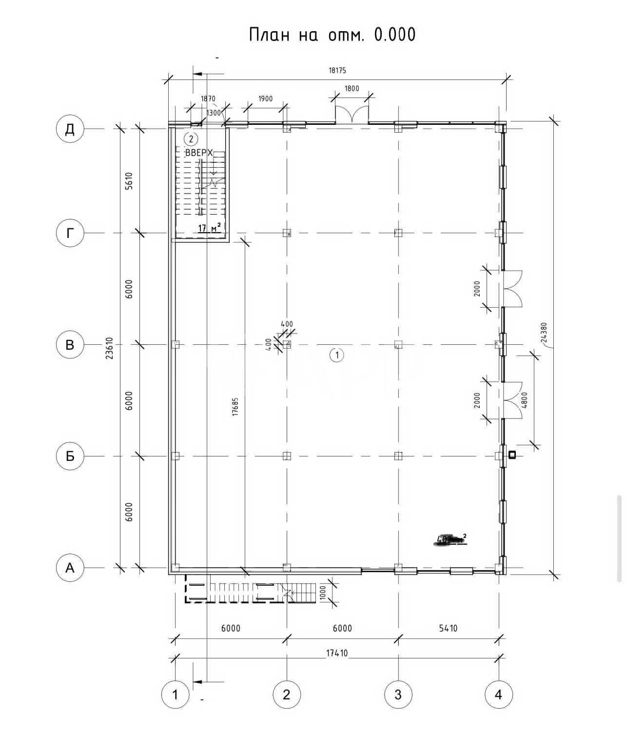
Площадь: 880 м².
Этаж / Этажность: 1 / 2.

Описание и характеристики

Сдаю 2-х этажное отдельно стоящее здание 880 кв.м. со своей парковкой.
От Собственника. Без комиссии
- Расположение: Прикубанский округ, угловое здание, рядом остановка
общественного транспорта, удобный подъезд.
- Преимущества: Отдельно стоящее здание, своя парковка.
Возможна сдача первый и второй этаж раздельно.
- Характеристики: Предчистовая отделка, общая площадь 880 кв.м, свободная планировка, все коммуникации центральные, свое отопление, электричество 100 кВт. Высота потолка 3.8 м.  Входных групп - 4 шт.
- Отлично подходит под клинику, мед. центр, детский сад/центр, офисы, спорт школу, фитнес центр, фаст фуд,  ресторан и другие направления.
- Полная готовность здания и благоустройство территории около 3 месяцев.
Возможно подписание до завершения строительных работ. Согласование ремонта по арендатора.
Арендные каникулы присутствуют. Ремонт оговаривается индивидуально.
От Собственника. Без комиссии.

По всем вопросам можете обращаться к вашему персональному менеджеру:
Иван Самойленко - консультант по коммерческой недвижимости.
Большая база коммерческой недвижимости.
Подписывайтесь на наш профиль, чтобы узнавать о новых локациях первыми!

Перейти в карточку объекта в CRM: 131039.

АРР Краснодар

+7 989 169-49-07

или оставьте ваш номер, и я перезвоню в течение 30 минут

Отправляя заявку вы соглашаетесь на обработку персональных данных

1 000 000 руб.

?

$ 12 403

€ 10 702

1 136 руб./м²


880 м²

1/2 этажей

Код объекта

131039

Предложение доступно для субагентов, авторизуйтесь

АРР Краснодар

+7 989 169-49-07

или оставьте ваш номер, и я перезвоню в течение 30 минут

Отправляя заявку вы соглашаетесь на обработку персональных данных

Похожие объявления

Посмотреть все похожие объявления
1/26
Код объекта: 349393.
Тип объекта: Отдельно стоящее здание.
Площадь: 550 м².
Этаж / Этажность: 2 / 3.
1/13
Код объекта: 399274.
Тип объекта: Отдельно стоящее здание.
Площадь: 950 м².
Этаж / Этажность: 1 / 2.
1/36
Код объекта: 390261.
Тип объекта: Отдельно стоящее здание.
Площадь: 978 м².
Этаж / Этажность: 1 / 2.
1/20
Код объекта: 402737.
Тип объекта: Отдельно стоящее здание.
Площадь: 670 м².
Этаж / Этажность: 1 / 3.
1/13
Код объекта: 399274.
Тип объекта: Отдельно стоящее здание.
Площадь: 950 м².
Этаж / Этажность: 1 / 2.
1/36
Код объекта: 390261.
Тип объекта: Отдельно стоящее здание.
Площадь: 978 м².
Этаж / Этажность: 1 / 2.
1/16
Код объекта: 259094.
Тип объекта: Торговое помещение.
Площадь: 554 м².
Этаж / Этажность: 1 / 2.
1/10
Код объекта: 259116.
Тип объекта: Торговое помещение.
Площадь: 554 м².
Этаж / Этажность: 1 / 2.
1/16
Код объекта: 290148.
Тип объекта: Помещение свободного назначения.
Площадь: 280 м².
Этаж / Этажность: 2 / 2.
1/12
Код объекта: 340223.
Тип объекта: Торговое помещение.
Площадь: 80 м².
Этаж / Этажность: 1 / 5.
1/12
Код объекта: 350564.
Тип объекта: Торговое помещение.
Площадь: 1000 м².
Этаж / Этажность: 1 / 1.

Не хочу искать, перезвоните мне!

Оставьте номер телефона, наш специалист свяжется с вами и поможет с подбором недвижимости!