Продаю готовый арендный бизнес, 951 м²

ул Северная, д. 11

150 000 000 руб.

?

$ 1 086

€ 979

157 729 руб./м²


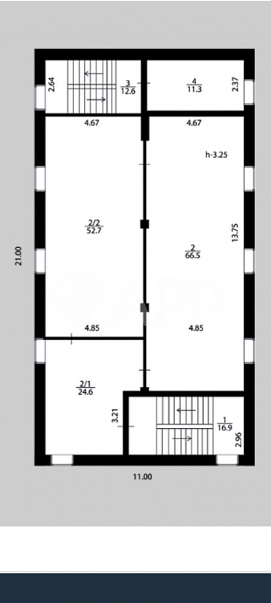
951 м²

1/3 этажей

Код объекта

125364

Предложение доступно для субагентов, авторизуйтесь

Продаю Готовый арендный бизнес, 951 м²

Код объекта: 125364.
Тип объекта: Готовый арендный бизнес.
Площадь: 951 м².
Этаж / Этажность: 1 / 3.
Месячный арендный поток (МАП): 600000 руб.
Окупаемость: 20.8 лет
Доходность: 4.8 %
Назначения: Арендный бизнес.

Описание и характеристики

Стоимость объекта: 150 000 000 руб.
Месячный арендный поток (МАП): 600 000 руб.
Окупаемость: 20.8 лет
Доходность: 4.8 %
Продаю отдельно стоящее здание общей площадью 951 кв.м.
От собственника. Без комиссии
- Западный округ
- Арендатор Детский центр
- Три этажа плюс цоколь
- Во дворе есть своя парковка
- Удобный подъезд
- Развитая инфраструктура
- Рядом остановки общественного транспорта
- Высокий автомобильный и пешеходный трафик
- Коммуникации центральные
От Собственника. Без комиссии

По всем вопросам можете обращаться к вашему персональному менеджеру:
Михаил Брянцев - консультант по коммерческой недвижимости.
Большая база коммерческой недвижимости.
От собственника. Без комиссии .
"Агентство регионального развития"
Коммерческая недвижимость Краснодара.
От собственника. Без комиссии.
Подписывайтесь на наш профиль, чтобы узнавать о новых локациях первыми!

Перейти в карточку объекта в CRM: 125364.

АРР Краснодар

+7 989 169-49-07

или оставьте ваш номер, и я перезвоню в течение 30 минут

Отправляя заявку вы соглашаетесь на обработку персональных данных

150 000 000 руб.

?

$ 1 952 911

€ 1 677 351

157 729 руб./м²


951 м²

1/3 этажей

Код объекта

125364

Предложение доступно для субагентов, авторизуйтесь

АРР Краснодар

+7 989 169-49-07

или оставьте ваш номер, и я перезвоню в течение 30 минут

Отправляя заявку вы соглашаетесь на обработку персональных данных

Похожие объявления

Посмотреть все похожие объявления
1/16
Код объекта: 339768.
Тип объекта: Готовый арендный бизнес.
Площадь: 1075.7 м².
Этаж / Этажность: 1 / 1.
1/14
Код объекта: 249860.
Тип объекта: Готовый арендный бизнес.
Площадь: 728 м².
Этаж / Этажность: 1 / 2.
1/1
Код объекта: 372261.
Тип объекта: Готовый арендный бизнес.
Площадь: 1354.6 м².
Этаж / Этажность: 1 / 2.
1/14
Код объекта: 356816.
Тип объекта: Готовый арендный бизнес.
Площадь: 760.4 м².
Этаж / Этажность: 1 / 1.
1/11
Код объекта: 334783.
Тип объекта: Готовый арендный бизнес.
Площадь: 1241 м².
Этаж / Этажность: 1 / 4.
1/16
Код объекта: 339768.
Тип объекта: Готовый арендный бизнес.
Площадь: 1075.7 м².
Этаж / Этажность: 1 / 1.
1/14
Код объекта: 249860.
Тип объекта: Готовый арендный бизнес.
Площадь: 728 м².
Этаж / Этажность: 1 / 2.
1/14
Код объекта: 356816.
Тип объекта: Готовый арендный бизнес.
Площадь: 760.4 м².
Этаж / Этажность: 1 / 1.
1/22
Код объекта: 336465.
Тип объекта: Готовый арендный бизнес.
Площадь: 1000 м².
Этаж / Этажность: 1 / 1.
1/18
Код объекта: 253177.
Тип объекта: Торговое помещение.
Площадь: 147.5 м².
Этаж / Этажность: 1 / 22.
1/20
Код объекта: 253216.
Тип объекта: Торговое помещение.
Площадь: 62.5 м².
Этаж / Этажность: 1 / 22.
1/18
Код объекта: 261064.
Тип объекта: Помещение свободного назначения.
Площадь: 68.9 м².
Этаж / Этажность: 1 / 9.
1/12
Код объекта: 253164.
Тип объекта: Помещение свободного назначения.
Площадь: 44.6 м².
Этаж / Этажность: 1 / 18.
1/32
Код объекта: 303836.
Тип объекта: Складское помещение.
Площадь: 585 м².
Этаж / Этажность: 1 / 1.

Не хочу искать, перезвоните мне!

Оставьте номер телефона, наш специалист свяжется с вами и поможет с подбором недвижимости!