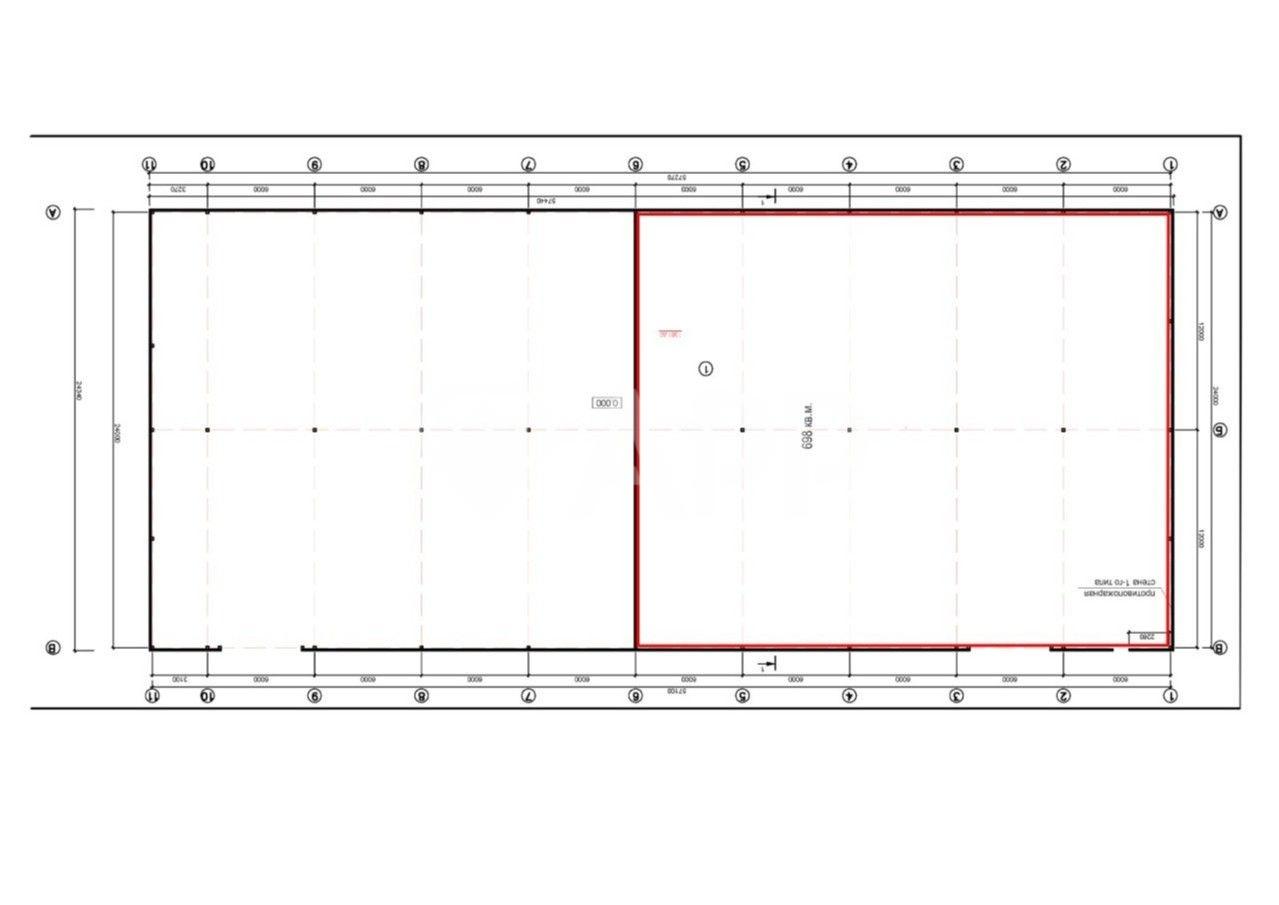
Сдаю складское помещение, 700 м²

поселок Березовый, ул Новотитаровская

315 000 руб.

?

$ 1 086

€ 979

450 руб./м²


700 м²

1/1 этажей

Код объекта

124787

Предложение доступно для субагентов, авторизуйтесь

Сдаю Складское помещение, 700 м²

Код объекта: 124787.
Тип объекта: Складское помещение.
Площадь: 700 м².
Этаж / Этажность: 1 / 1.
Назначения: Производство, Склад.

Описание и характеристики

Сдаю утепленный склад, 700м²
От Собственника. Без комиссии
- Динской р-н, ст. Новотитаровская
- Развитая транспортная инфраструктура
- Охраняемая и огражденная территория
- Большая бетонированная площадка для парковки и зоны погрузки - разгрузки
- На территории имеется передвижная рампа
- Секционные ворота 4,6м х 3,6м
- Высота потолка 8 м общая, 6.2м  рабочая
- Пол: топпинговый бетон - антипыль
- Стены: сэндвич-панели
- Есть мокрая точка, можно оборудовать комнаты офисного типа, санузел, душевую
- Водоснабжение, водоотведение
- 70 кВт электричества
- Возможность аренды от 700 до 1400 кв.м
От Собственника. Без комиссии

По всем вопросам можете обращаться к вашему персональному менеджеру:
Айгуль Воробьева - консультант по коммерческой недвижимости.
Большая база коммерческой недвижимости.
От Собственника. Без комиссии
"Агентство регионального развития"
Коммерческая недвижимость Краснодара.
От Собственника. Без комиссии
Помощь с оформлением ипотеки

Подписывайтесь на наш профиль, чтобы узнавать о новых локациях первыми!

Перейти в карточку объекта в CRM: 124787.

АРР Краснодар

+7 989 169-49-07

или оставьте ваш номер, и я перезвоню в течение 30 минут

Отправляя заявку вы соглашаетесь на обработку персональных данных

315 000 руб.

?

$ 4 159

€ 3 482

450 руб./м²


700 м²

1/1 этажей

Код объекта

124787

Предложение доступно для субагентов, авторизуйтесь

АРР Краснодар

+7 989 169-49-07

или оставьте ваш номер, и я перезвоню в течение 30 минут

Отправляя заявку вы соглашаетесь на обработку персональных данных

Похожие объявления

Посмотреть все похожие объявления
1/32
Код объекта: 303836.
Тип объекта: Складское помещение.
Площадь: 585 м².
Этаж / Этажность: 1 / 1.
1/12
Код объекта: 402739.
Тип объекта: Складское помещение.
Площадь: 624 м².
Этаж / Этажность: 1 / 1.
1/14
Код объекта: 400024.
Тип объекта: Складское помещение.
Площадь: 402 м².
Этаж / Этажность: 1 / 1.
1/20
Код объекта: 378902.
Тип объекта: Складское помещение.
Площадь: 500 м².
Этаж / Этажность: 1 / 1.
1/23
Код объекта: 411563.
Тип объекта: Складское помещение.
Площадь: 530 м².
Этаж / Этажность: 1 / 1.
1/32
Код объекта: 303836.
Тип объекта: Складское помещение.
Площадь: 585 м².
Этаж / Этажность: 1 / 1.
1/46
Код объекта: 295855.
Тип объекта: Складское помещение.
Площадь: 500 м².
Этаж / Этажность: 1 / 1.
1/9
Код объекта: 370695.
Тип объекта: Складское помещение.
Площадь: 700 м².
Этаж / Этажность: 1 / 1.
1/18
Код объекта: 270242.
Тип объекта: Складское помещение.
Площадь: 600 м².
Этаж / Этажность: 1 / 1.
1/12
Код объекта: 402739.
Тип объекта: Складское помещение.
Площадь: 624 м².
Этаж / Этажность: 1 / 1.
1/32
Код объекта: 303836.
Тип объекта: Складское помещение.
Площадь: 585 м².
Этаж / Этажность: 1 / 1.
1/16
Код объекта: 259094.
Тип объекта: Торговое помещение.
Площадь: 554 м².
Этаж / Этажность: 1 / 2.
1/24
Код объекта: 272476.
Тип объекта: Торговое помещение.
Площадь: 129 м².
Этаж / Этажность: 1 / 20.
1/21
Код объекта: 358146.
Тип объекта: Торговое помещение.
Площадь: 267.5 м².
Этаж / Этажность: 1 / 4.
1/46
Код объекта: 350994.
Тип объекта: Торговое помещение.
Площадь: 1300 м².
Этаж / Этажность: 1 / 1.

Не хочу искать, перезвоните мне!

Оставьте номер телефона, наш специалист свяжется с вами и поможет с подбором недвижимости!